Skip to main content
OFFICE
NEWSLETTER
PROJECTS
CONTACT
Türkçe
English
You are here
Home
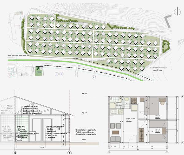
Adapazarı Earthquake Housing
Start Date:
1999
Project Scope:
Deprem Konutları
Location:
Adapazarı
Gallery: