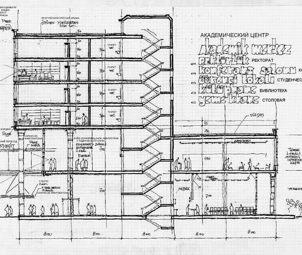
Astana Universitesi

Toplam İnşaat: 
160 000
Başlangıç Tarihi: 
2005
Proje Türü: 
Eğitim
Proje Kapsamı: 
Tüm Mimari Projeler
Lokasyon: 
Kazakistan