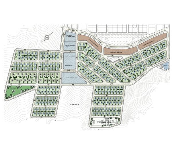
Cezair'de Konut Yerleşimi - Etap 2

Başlangıç Tarihi: 
2005
Proje Kapsamı: 
Master Plan and Housing Design Development
Lokasyon: 
Algeria