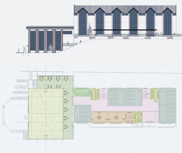
Doğanevler Primery School

Toplam İnşaat: 
3 000
Başlangıç Tarihi: 
1995
Proje Kapsamı: 
All Architectural Projects
Lokasyon: 
İstanbul