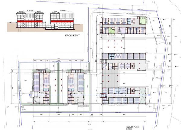
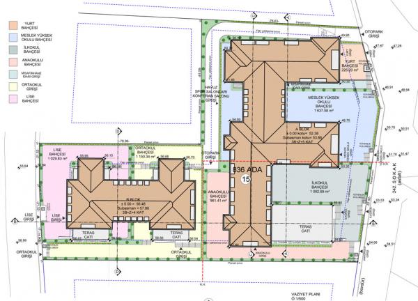
Vatan Egitim Teknolojileri Vakfi Okul Projesi

Toplam İnşaat: 
22 000
Başlangıç Tarihi: 
2016
Proje Kapsamı: 
Tüm Mimari Projeler
Lokasyon: 
Küçükçekmece / İstanbul